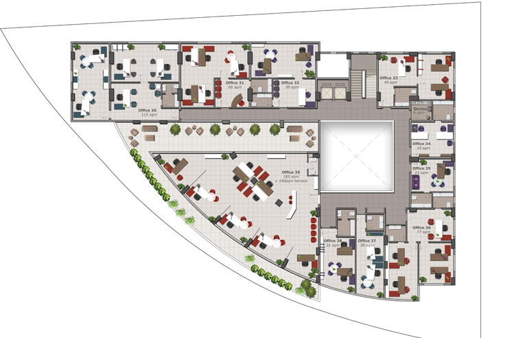
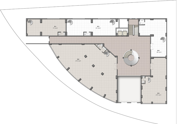
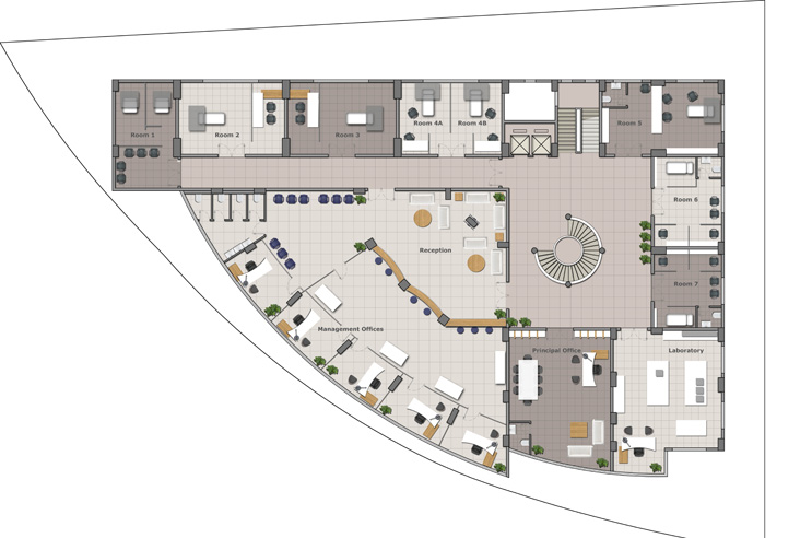
Home Floor Plans
Floor Plans
      Bookmark and Share
© 2012 Prime Center sarl. All rights reserved  |  Website creative consultancy by Si - Live Communication
Follow us on Prime Center on Facebook